Pro Practice| Jackson Retreat
ARCH 250 | Spring 2020 | WSoA
Instructor: Mark Owen
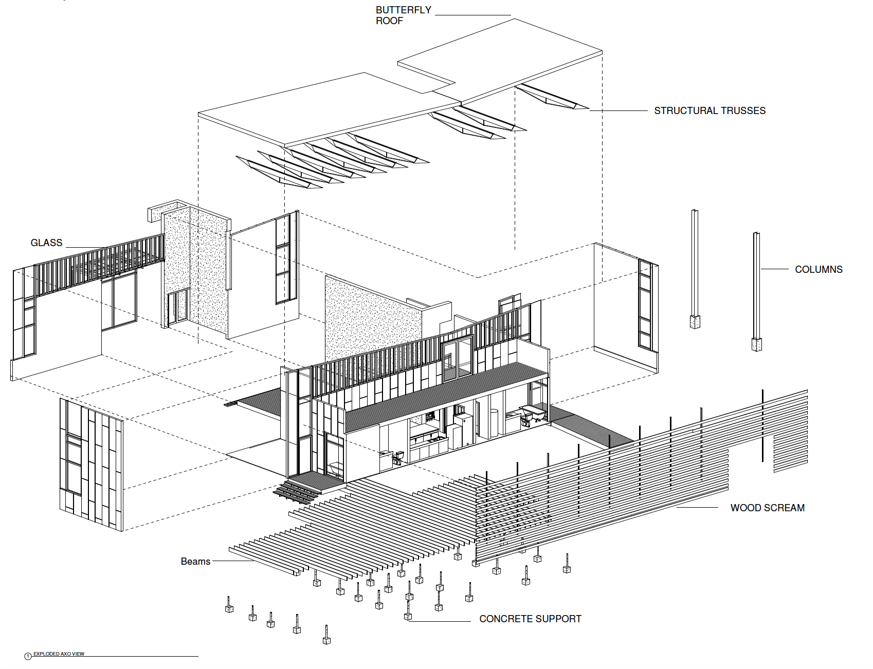
Student was assigned the “Jackson Family Retreat” as Precedent, in order to develop a set of construction documentation that contained local codes.
Plans
Floor Plan 1
Floor Plan 2
Roof Plan
Section
Side Elevation
Exterior Elevation
Cut Section Perspective
Perspective View

